د.أحمد العويس Dr.Alawais
د.أحمد العويس Dr.Alawais

@AlawaisAhmed

5 تغريدة 4 قراءة Jan 26, 2023
(ثريد)
فلة البستيل
الهند
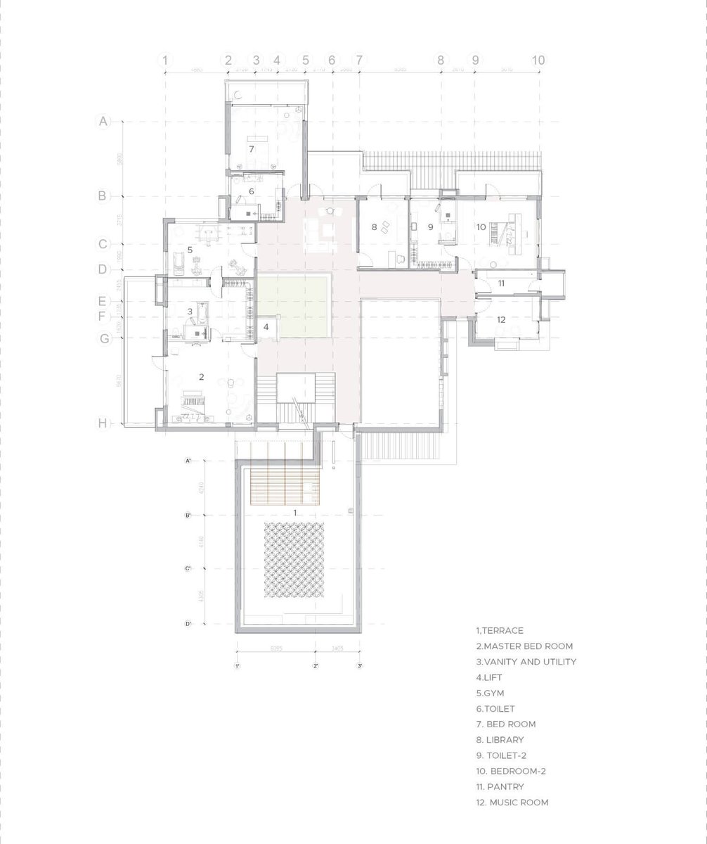
المعماري CDA Architects
المساحة 1400 م2
يعتبر التصميم تدخلًا مشابهًا يتخذ موقفًا فريدًا من "العيش مع الطبيعة".
العائلة من الممارسين الطبيين الذين لديهم تقارب مع الطبيعة وقد أكدا بوضوح على القرب من اللون الأخضر ووفرة الضوء الطبيعي
كان من الضروري التخطيط لحياة صحية بالنظر إلى ظروف الوباء ، فإن توجيه جميع المساحات نحو الفناء المركزي يسهل الاتصالات المرئية أثناء البقاء في حدود مساحة الفرد.
تم تقسيم المنزل إلى منطقتين ؛ يشكل الطابق الأرضي والطابق الأول مناطق عائلية خاصة ، في حين أن منطقة الضيوف عبارة عن جناح مميز يقتصر على الطابق الأرضي بينما يتم توصيله بمساحات عائلية على نفس المستوى.
يولد الترتيب المكاني تلاعبًا خفيًا بالجماهير إلى جانب منح سيولة للمساحة ،
تتخلل الفله شرفات أرضية شبه مفتوحة. تولد منظرًا يبدو هائلاً وهادئًا. لدمج البيوفيليا وجعل المنزل أقرب إلى المروج ، يتم ترتيب الكتل في ترتيب يربط المساحات حول الفناء المركزي.

جاري تحميل الاقتراحات...