المعماري/ هشام القاسم
المعماري/ هشام القاسم

@ArchHesham

5 تغريدة 22 قراءة Nov 04, 2021
#قصة_منزل
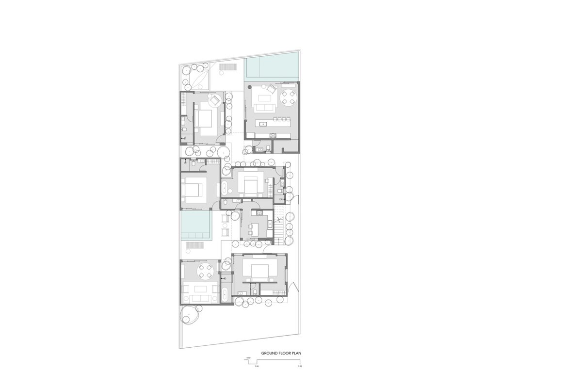
لمن يتساءل دائما كيف يعيش بمنزل مفتوح في ظل جو حار وغبار في المنطقة.
إليكم الحل في تلك الفكرة التصميمية "الانفتاح على الداخل"
تم التخطيط لهذا المنزل للاستجابة بشكل مثالي للبيئة وتوفير مساحات عالية الجودة.
واجهة مصمتة من شأنها أن تتيح الفتح للداخل، ويطل كل فراغ على مساحته الخاصة.
توجد وحدتا حمام سباحة خاصتان في الطابق الأرضي، ووحدتا تراس في المستوى الثاني؛ بتصميم يجعل المرء يذهب إلى الخارج قبل الدخول إلى الغرفة المجاورة.
بُني المنزل بمواد محلية، حيث يتميز هذا الاختيار بمنح المباني مقاومة جيدة لظروف الموقع:
الشمس والرطوبة.
كما أنه من الناحية الجمالية؛ يشيد الطابع الطبيعي لتلك المواد بجمال الغابات والشواطئ، ويستغل تأثير أشعة الشمس على أسطحها.
إليكم كامل المخطط الخاص بالمنزل.

جاري تحميل الاقتراحات...