م.عبدالرحمن التركي
م.عبدالرحمن التركي

@ArchPlaces

9 تغريدة 28 قراءة Sep 30, 2021
اهلا وسهلا بكم ,,,
حديثنا اليوم عن منزل في استراليا لأرض ابعادها 7*36 م بإجمالي مسطحات بناء 196 م2 !!
التصميم الإحترافي اوجد إمتداد بصري ليصنع ايقونة معمارية حولت الفراغات إلى مساحات تصنع تجربة فريدة لكل مستخدم وفي كل حركة
استثمر في التصميم تسمتع بالنتائج ,,,
بداية من صالة المعيشة
تراها يا عزيزي باطلالة ممتدة من الشمال للجنوب من الفناء الجانبي وحتى الحديقة الخلفية وبارتفاع دورين ليكون دخول الإضاءة من جميع الجهات
والأهم الدرج قريب دون تأثير على منطقة الجلوس اطلاقا والتشطيب الداخلي من الدهان الأبيض فقط!!
الجودة تكمن في التفاصيل ,,,
وهنا المطبخ وطاولة الطعام ,,,
لاحظ يا عزيزي كيف تحيط بها النوافذ من جميع الجهات , وكيف اصبح المطبخ لمسة جمالية تضيف للمكان لمسة ابداعية ,,,
هل ترى حوائط تحجب الإتصال البصري بين الفراغات ؟
او ترى اي قواطع ؟
او حتى تشطيب بمواد مختلفة ؟
كل هذا الجمال نتيحة تصميم معماري مميز ,,,
وهنا ترى الفناء الجانبي والحديقة الخلفية
هذه الفراغات هي الجوهر لصناعة الفارق في تجربة المستخدم النهائي في هذا المنزل ,,,
وهنا الواجهات
كلها من الدهان وتطعيم من الخشب ليكسر رتابة الواجهة
شئ بسيط ومتواضع ولا يحمل جمالية عالية لأن الجمال للمستخدم دون المارة ,,,
وهنا دورة المياه كما لو كانت لجناح فندقي ,,,
في دورة المياه الخاصة بك انت تملك نفس المغسلة والشور والكرسي والبانيو وحتى المراية
ولكن
ولكن
ولكن
لا تملك تصميم معماري احترافي ليصنع لك تجربة مختلفة ومميزة ,,,
التصميم وحده من يصنع الفارق لتجربة المستخدم النهائي ,,,
وهنا
الدرج
الممر العلوي
المدخل الرئيسي
ترى فيها
الدهان
والأرضية الباركية
والنوافذ (دون ان تدخلها الشمس)
فقط !!
صممت بشكل يجعل تجربتك أكثر احترافية ,,,
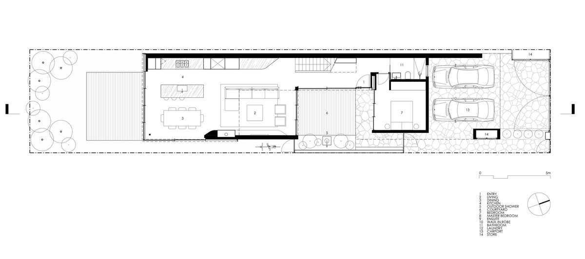
وهنا مخطط الدور الأرضي ,,,
وختاماً صور متفرقة للمشروع ,,,
دمتم بود🌹

جاري تحميل الاقتراحات...