م.عبدالرحمن التركي
م.عبدالرحمن التركي

@ArchPlaces

9 تغريدة 233 قراءة Jul 09, 2021
اهلا وسهلا بكم ,,,
حديثنا اليوم عن منزل من أعمالنا في المدينة المنورة , كل ما ستراه يقع في إجمالي مسطح بناء 377.5 م2 فقط !
هذا المنزل تم تصميمه وفقاً لإحتياجات العميل والميزانية المرصودة للتنفيذ ونمط المعيشة الخاص به ,,,
استثمر في التصميم تسمتع بالنتائج ,,,
بداية من الواجهة كلها من الدهان مع تطعيمات من التيوبات الحديدية باللون البني أما الإنارة فهي شريطية لتعطي للواجهة تفرداً ,,,
لاخظ يا عزيز أن الروح واحدة بين السور و واجهة المنزل الرئيسية , لاحظ أن التضاد بالألوان صنع احساساً بالإختلاف ,,,
الجودة تكمن في التفاصيل ,,,
وهنا الواجهة الجانبية تراها بنفس الروح والهوية ,,,
هل ترى غير الدهان و التيوبات مواد استخدمت في التشطيب ؟ وهل تيقنت أن الجمال يكون في أصل التكوين الكتلي لا في مواد التشطيب الجمالية المزيفة ؟
استثمر في التصميم تسمتع بالنتائج ,,,
وهنا الواجهة الخلفية للمنزل
الدهان أبيض وشئ من الأسود ليكسر الجمود ,,,
الجودة تكمن في التفاصيل ,,,
وهنا مخطط الدور الأرضي
لاحظ يا عزيزي الفناء الداخلي مع صالة الجلوس التي تطل على الفناء الجانبي والداخلي
إن الإمتداد البصري لصالة الجلوس يمتد 17 م من الشرق إلى الغرب بخصوصية مطلقة
ولاحظ أن المدخل يمتد بصرياً 12 م بفراغات تخص العائلة فقط
استثمر في التصميم تسمتع بالنتائج ,,,
إن التفاصيل هي الأهم ,,,
ستكون إطلالة العائلة على الفناء الداخلي من أسفل الدرج بشكل يجعل الدرج عنصراً جمالياً يضيف للمنزل إحساساً مختلف ,,,
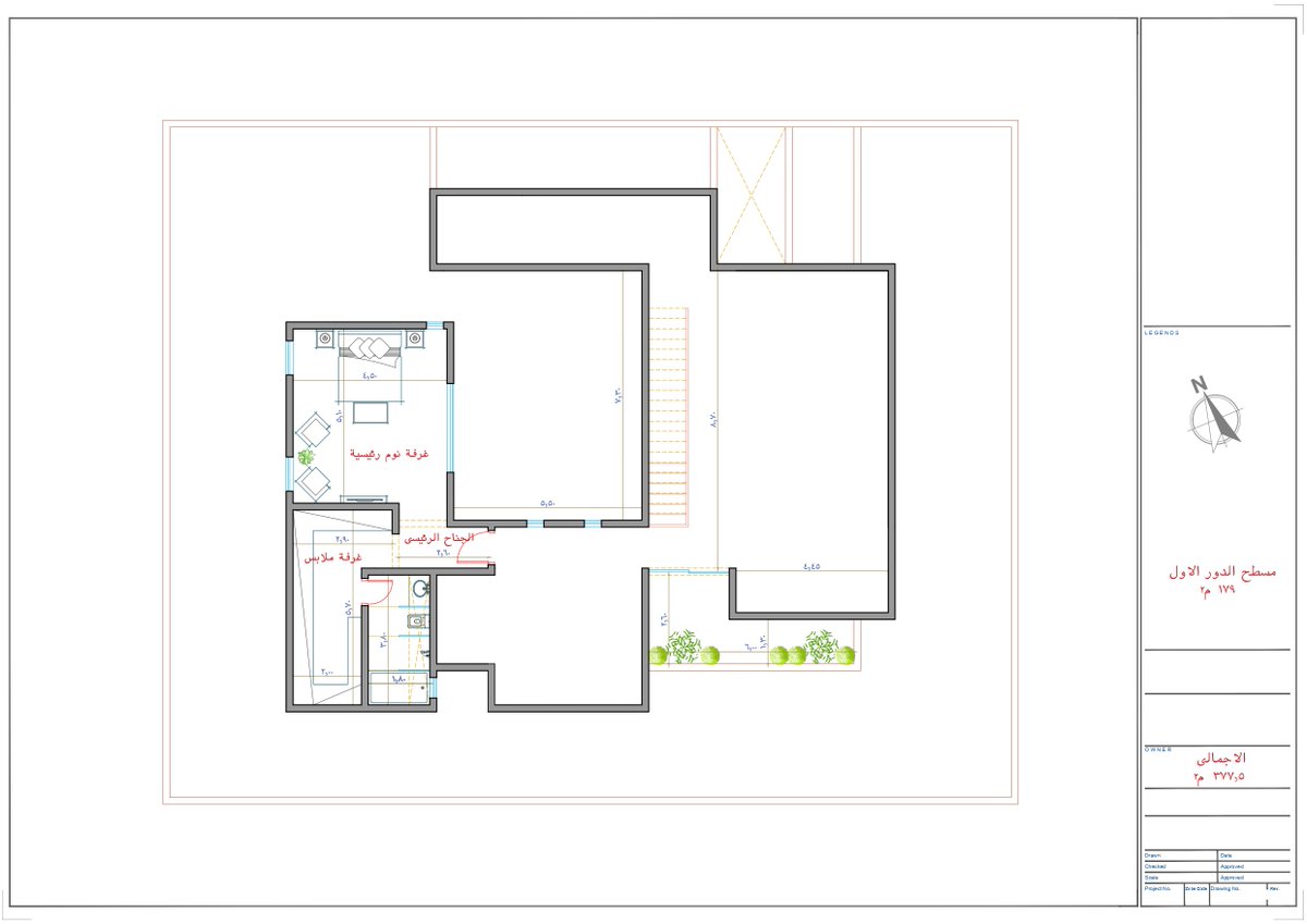
وهنا تصميم الدور الأول ,,,
لاحظ يا عزيزي مكان غرفة النوم الرئيسية واطلالتها على جميع الأفنية بإستثناء الفناء الجانبي الأيسر , هذا يجعل منها مكان لمتابعة جميع افراد المنزل من خلالها فقط ,,,
استثمر في التصميم تسمتع بالنتائج ,,,
ولأن الجودة تكمن في التفاصيل فأنظر يا عزيزي إلى تكوين النهاية البصرية في الممر الرئيسي من خلال الدرج
فسترى يا عزيز إلى نهائية مقاربة لهذه النهاية بأشجار بسيطة تستقبلك في كل مرور لك من خلال الدور الأول ,,,
الجودة تكمن في التفاصيل ,,,
وختاماً صور متفرقة للمشروع ,,,
دمتم بود

جاري تحميل الاقتراحات...