م.عبدالرحمن التركي
م.عبدالرحمن التركي

@ArchPlaces

8 تغريدة 12 قراءة Mar 08, 2021
اهلا وسهلا بكم ,,,
حديثنا اليوم عن منزل في نيوزيلاند يثبت لنا أن التعامل مع أي مادة كانت يمكن أن يخرج لنا جمالية عالية حتى لو كانت من خرسانة !
المعماري المميز يصنع لك الجمال بجميع المواد !
لاحظي يا عزيزي ان الواجهة من الخرسانة المنعمة وتم تشكيلها بأستخدام السيلر فقط !
ومعها تطعيم بالتيوبات الحديدية لتحرك الواجهة
لا يوجد تكفة أو صعوبة أو احترافية عمالة , بل يوجد ذائقة وتصميم
والأهم أن هناك دراسة للإضاءة وكيف تظهر الواجهة
وتذكر ان الجودة تكمن في التفاصيل ,,,
في هذه اللقكتين لاحظ يا عزيزي علاقة الفراغات الداخلية بالفناء وكيف تتصل به وكأنه جزء منه دون حجب للرؤية أو تدمير للعلاقات الوظيفية
بل قامت بتحسين تجربة المستخدم ورفع جودة الحياة داخل هذه الفراغات ,,,
استثمر في التصميم تستمتع بالنتائج ,,,
وهنا مطبخ المنزل بكامل أناقته , رغم لونه الأسود القاتل
هل هو أفضل أو أسواء من مطبخ منزلك !
ولماذا هذا التباين بالنتائج بوجهة نظرك ؟
المال ؟
المواد؟
احترافية العمالة؟
التصميم ؟
وهل تعتقد أن الإضاءة شكلت فارق بالنتائج النهائية ؟
لاحظ يا عزيزي كيف تقوم النوافذ العرضية بتكوين لقطة بانورامية للمواقع المحيطة ,,,
اخرج عن المألوف فلربما يكمن الجمال هناك ,,,
وهنا شكل تلك النافذة من الخارج ,,,
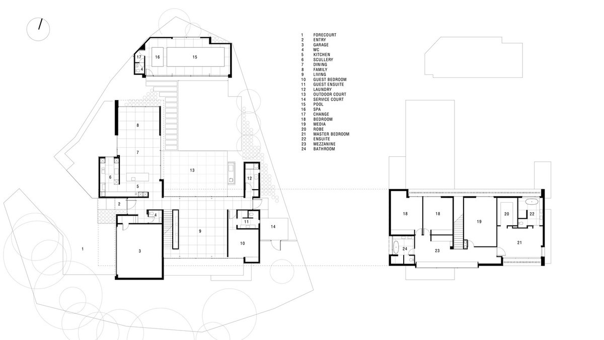
وهنا مخططات المنزل كاملة
وختاماً صور متفرقة للمشروع ,,,
دمتم بود🌹

جاري تحميل الاقتراحات...