م.عبدالرحمن التركي
م.عبدالرحمن التركي

@ArchPlaces

8 تغريدة 16 قراءة Jan 20, 2021
اهلا وسهلا بكم ,,,
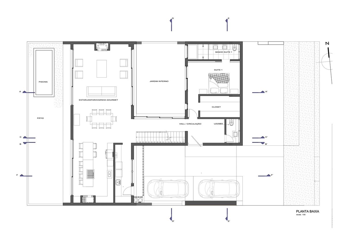
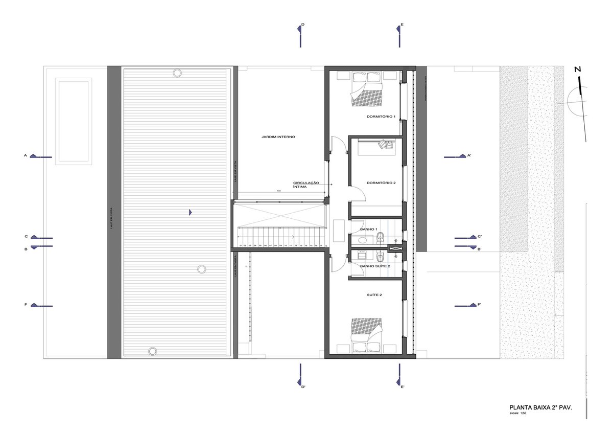
حديثنا اليوم عن منزل مميز في البرازيل , يحتوي على 4 غرف نوم بإجمالي مسطح بناء لا يتجاوز 295 م2 !
وجمال واتساع بصري وخصوصية عن الشارع
المحددات الإجتماعية والثقافية المتواجدة في هذا المنزل تشابه احتياجاتنا وبمسطح صغير جداً
استثمر في التصميم تستمتع بالنتائج
بداية من الخارج واجه بسيطة ودون تكلف , تيوبات لكسر حدة أشعة الشمس وخصوصية عن الطريق , والدور الأرضي كله وكله تماماً بدون أي نوافذ وتشطيبه من الخرسانة !
ومع ذلك فالجمال غير مكلف
المعماري المميز يحول المواد الخام الغير ملاحظة إلى جمال دائم !
أما هذا المنزل تم تصميمه لمن يسكن فيه وليس لمن يمر في الطريق أو يزور لساعات,,,
انظر إلى قسم المعيشة بأطلالته البانورامية على الجانبين وكمية الإضاء الطبيعية واستشعر مرور تيار الهواء من خلالها كل ذلك دون اهدار للمساحة أو زيادة التكاليف
قارنها بمكان معيشتك وقيم نمط حياتك,,,
أما هنا فمنظر الغروب وجمال الإطلالة يجعلك تترقب المساء لتمتع ناظريك بهذا الجمال ,,,
قارنها بمكان معيشتك وتحسر على ما انت فيه ثم ابحث عن ما ينقصك فالمواد موجودة والمال موجود والشركات التنفيذية موجودة ما ينقصك هو التصميم المميز ,,,
استثمر في التصميم تستمتع في النتائج ,,,
وهنا مدخل المنزل من خلف الخرسانة الخشنة وكأنها تبعد من لا يسكن هذا المنزل وتحرسه , وباب زجاجي شفاف ومرحب ,,,
الجمال يكمن في التفاصيل ,,,
وهذا الجمال لم ينتج بدون الدراسات المعمارية , وهذا جزء يسير منها وهو جوهر المشروع ,,,
وهنا مخططات المنزل كاملة ,,,
وختاماً نشارككم صور متفرقة للمشروع ,,,
دمتم بود🌹

جاري تحميل الاقتراحات...