م.عبدالرحمن التركي
م.عبدالرحمن التركي

@ArchPlaces

11 تغريدة 52 قراءة Jan 18, 2021
اهلا وسهلا بكم ,,,
حديثنا اليوم عن منزل في فيتنام بإجمالي مسطح 250 م2 , الحدائق هي جمال كل منزل , وإن كانت الأرض صغيرة فهي تاج كل منزل ,,,
المحافظة على الجمالية لا يعني الضيق او التكلفة أو انعدام الجمالية ,,,
المعماري المميز يصنع لك تجربة مختلفة ودون تكلّف ,,,
بداية من الواجهة الخارجية فتراها جميلة بدون تكلف , تيوبات حديدية متحركة تستر النوافذ من خلفها ولهيب الشمس عنها ,,,
ومن الجانب تتلاشى الواجهة لتبدأ من عندها لصعود إلى حديقة فوق منزلك تصفي فيها لحظاتك ,,,
عندما يأخذ المنزل حيز الأرض فإن مكانة الحدائق لا تؤخذ ,,,
هنا دعونا نفصل في هذه اللقطة المميزة ,
المنزل بصالة جلوسة وطاولة الطعام والمطبخ ومن خلفها الدرج و باقي الخدمات , كلها بدون تكلف وبامتداد لا يشعرك بصغر المسطح !
الإتساع ليس بمساحة الفراغ , بل بما يصنعه لك المعماري داخل ذلك الفراغ ,,,
بدرج مميز ولا يأخذ مساحة وعنصر بصري مؤثر يتكون لديك هذا التصميم الداخلي المميز ,,,
استثمر في التصميم تستمتع بالنتائج ,,,
أما هنا فترى الحديقة الجانبية التي ترتبط بالحديقة العلوية بدرج مشجر كذلك , والأعمدة الجميلة لترفع المنزل لتشعرك أن المحيط الداخلي والخارجي واحد ,,,
الجمال تكامل التفاصيل وليس تكسيات تغري العين ,,,
وهنا ترى اتصال الدرج بالدور الأول وبساطة وجمال تشطيب غرفة النوم الرئيسية ,,,
الجمال لا يعني التكلف إطلاقاً ,,,
المعماري المميز يصنع لك تجربة فريدة ,,,
وهنا ترى حديقة منزلك العلوية إن أردتها تجميل فيمكن ذلك أو أن تكون مزرعة منزلك وتنتج منها احتياجاتك ,,,
ولم يكن هذا الجمال ليظهر لولا وجود دراسات تفصيلية وتحليل مستمر لتكوين المخرج النهائي المميز ,,,
العمل المعماري ليس رسومات , بل تكوين حياة ,,,
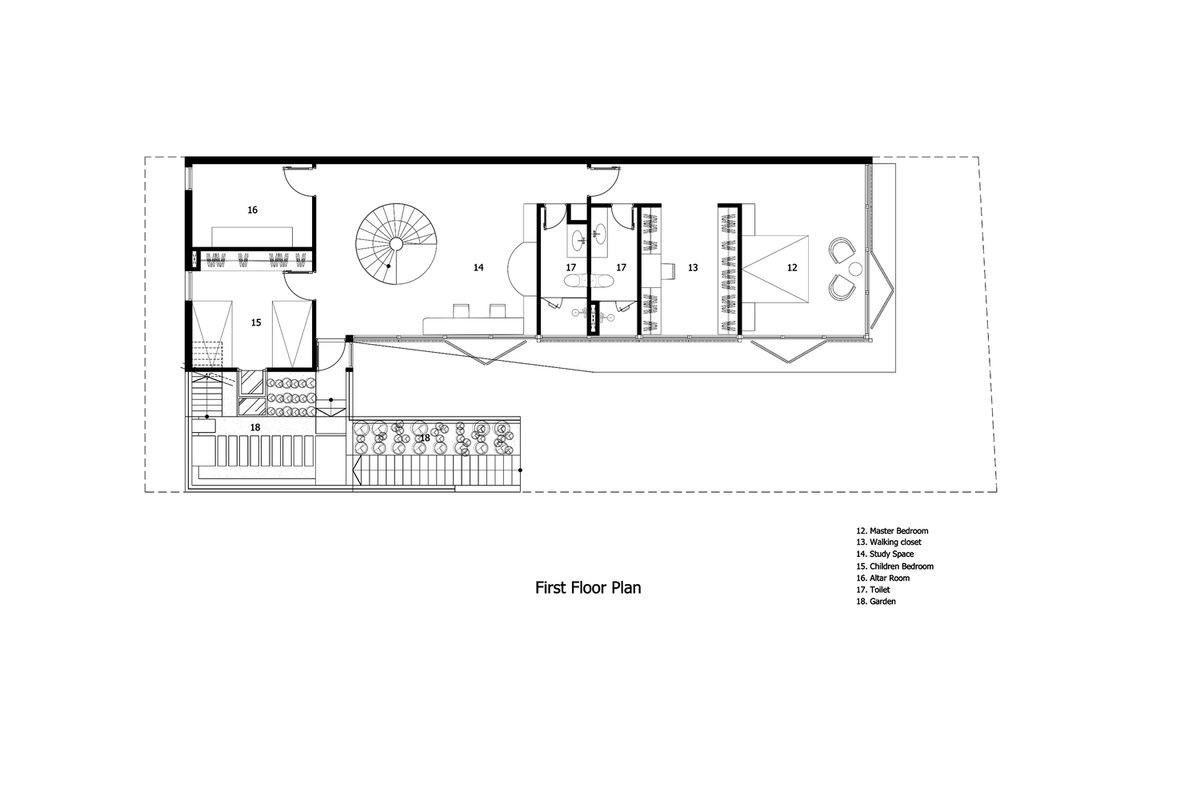
وهنا المخططات متكاملة وقطاع تفصيلي والواجهة الرئيسية للمنزل
وختاماً نشارككم صور متفرقة للمشروع ,,,
دمتم بود🌹

جاري تحميل الاقتراحات...