م.عبدالرحمن التركي
م.عبدالرحمن التركي

@ArchPlaces

10 تغريدة 17 قراءة Nov 18, 2020
اهلا وسهلا بكم ,,,
حديثنا اليوم كما اخترتم عن منزل في المكسيك بإجمالي مسطح بناء 629 متر مربع ,,,
التشطيب النهائي دهان فقط وشي من السواتر الحديدية , والنتيجة مبنى فرض نفسه ومكانته !!
لاحظ في الواجهات :
التكوين الكتلي
التضاد في الألوان
التوازن في توزيع النقاط البصرية
هذه هي العوامل التي كونت المنتج النهائي الإقتصادي والوظيفي والجميل , ليست مواد تشطيب عالية الثمن ولا مئات السبوتلايت ولا نوافذ كبيرة أو صغيرة ,
بل هي أسس علمية أكاديمية تم تطبيقها بالواقع !
لاحظ أن نقاط الإلتقاء بين أجزاء الواجهات جرئية وقوية ومؤكدة,,,
لا يوجد تكلف بل يوجد دراسة اقتصادية للمخرج النهائي,,,
ستدركها عينك ولكن قد لا تستطيع تفسيرها لإنعدام الخلفية العلمية ونحن نها نساعدك في فهم أساليب تكون النتائج النهائية الرائعة
استثمر في التصميم تستمع في النتائج!
وهنا المدخل وبهو الإستقبال , تراه قد انتقل لمستوى مختلف ومميز , لاحظ أن تطعيمات الخشب تواجد في أماكن مدروسة لتكون اقتصادية وملاحظة !
لاحظ أن الإضاءة تبين لك الطريق في ممر غير ظاهر !
وهنا لابد أن تدرك أن الجمال يأتي بالتصميم وليس برفع التكلفة !
أما الدرج فهو بسيط ورائع وغير مكلف , لا يوجد دربزين زجاجي ولا حديدي ولا حتى مذهب ومع ذلك فهو رائع جداً !!
قارنه بدرج منزلك جماليته , تكلفته , و تحقيقه للوظيفة !
وإن تندمت فلا تجعل غيرك يتندم !!
المعماري المميز ينتج تصاميم من العدم ! ولا يقوم بتمرير العجلة !
وعلى أن المشروع في بلد صحراوي (المكسيك) إلا أن الإتصال بين الداخل والخارج موجود وبأعلى مستوياته !
ولاحظ كيف تتسرب أشعة الشمس إلى داخل المنزل فتراها تجمل المكان وترفع من قيمته ,,,
المبنى الحقيقي يتفاعل مع بيئته ومحيطة ولا ينعزل عنها , فإن أنعزل تحول إلى سجن !!
غرف النوم بنفس الروح والنمط والهوية ,
وترى الإضاءة من السقف تعطي لغرفة الملابس روحاً وحيوية وكانها تتنفس منها !
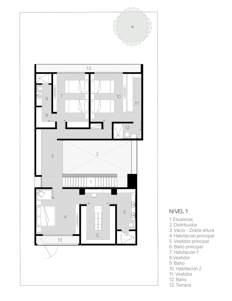
وهنا المخططات كاملة ,,,
وهنا الرسومات المعمارية للواجهات ,,,
وختاما نشارككم صور متفرقة للمشروع ,,,
دمتم بود 🌹

جاري تحميل الاقتراحات...