م.عبدالرحمن التركي
م.عبدالرحمن التركي

@ArchPlaces

7 تغريدة 63 قراءة Oct 18, 2020
اهلا وسهلا بكم ,,,
حديثنا اليوم عن منزل صغير ولطيف في المكسيك , المنزل يكفي لعائلة صغيرة من 4 أشخاص ,,,
كل ما ستراه تم احتوائة في مسطح 209 متر مربع فقط , فقط يا عزيزي 209 متر مربع !!!
خصوصية وانشراح وبساطة وجمال هي ما ستراه في حديثنا عن هذا المنزل ,,,,
نؤكد أن المنزل موجه لعائلة صغيره وهذا يؤكد ان البساطة تناسب ظروف العائلة التي سوف تسكن هذا المنزل,,,
الواجهة الخارجية بالدهان ولكي لا يكون فيها رتابة وضعت فرزات تقسم الواجهة ولا تكلف شيئاً إطلاقاً , الذائقة والإقتصاد تواجدت في هذا الحل البسيط,,,
شجرة بسيطة تكمل اللوحة,,,
وهنا الفراغ الأهم في المنزل , صالة المعيشة للعائلة , ارتفاع دورين وألوان صريحة و إضاءة تعطي للمكان روحاً وحياة ,,,
أما عن الممر فهو موزع لغرفة نوم الضيوف (وهذا من عادة أهل المكسيك)
لاحظ علاقة الدرج بالصالة , لاحظ علاقة المطبخ بالصالة
كل الفراغات تؤدي إلى الصالة ,,,
وهنا غرف النوم بسيطة وبمقاسات مناسبة , وأما الإضاءة الطبيعية فتراها في الصور فكيف هو الواقع ؟
لاحظ أن جميع غرف النوم تمتلك خصوصية وإضاءة طبيعية صريحة ,,,
وهنا الفراغات في المنزل بكل بساطة ودون تكلف , لا شئ يحتاج إلى صيانة دائمة ولا تكلف بمواد التشطيب ,,,
نافذة أمام الدرج ترفع من أهمية عنصر الحركة ,,,
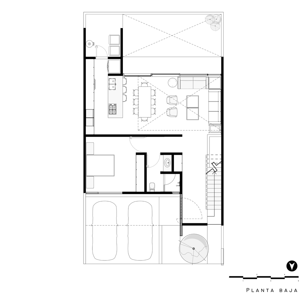
وختاماً هذه مخططات المنزل كاملة
وختاماً صور متفرقة من المنزل ,,,
دمتم بود 🌹

جاري تحميل الاقتراحات...