م.عبدالرحمن التركي
م.عبدالرحمن التركي

@ArchPlaces

9 تغريدة 94 قراءة Oct 14, 2020
اهلا وسهلا بكم ,,,
حديثنا اليوم عن منزل رائع في استراليا (كما يمكنك ان تصنفه منتجع منزلي😅)
التغذية البصرية الموجودة في هذا المنزل تتوفر في المنتجعات أما العلاقات الوظيفية بين الفراغات تتأكد في المنازل
وأنتج لنا المعماري هذه التحفة حين دمجها بدون اخلال ,,,
هنا تتضح الواجهة الرائعة بتشطيبها البسيط بالدهان الأبيض فقط مع لمسة بورسلان خشبي
لاحظ يا عزيزي كيف يمكن لزاوية المبنى بتكوينها المتفرد أن تغير النتيجة كاملة !
الجمال لا يعني التكلف , والمال وحده لا يعني الجمال ,,,
أما من الفناء فيتضح سبب وصفنا لهذه التحفة بـ(منتجع منزلي😅)هذه اللقطات لم نعتد أن نراها في المنازل ,,,
لاحظ بساطة الكتل ولاحظ التشطيب بالدهان , وكيف تكونت لنا بيئة خاصة عالية الجمال ,,,
وهنا الصالة الرئيسية تبين لنا أن الارتفاع العالي يعطي للمكان بصمة رائعة واحساس مختلف ,,,
كما تلاحظ في الصورة الثانية أن تيار الهواء عالي ولا يتوقف وهذا من المعالجات التي تنعكس من جودة العمل المعماري ,,,
دهان أبيض فقط فقط فقط ,,,
أما درج المنزل فيحاكي التكوين المتفرد في واجهة المنزل ,,,
وهنا التشطيب الداخلي البسيط
( لا اعتقد أن المنزل بإحتياج لتشطيب مبهر لأن لا شئ سيفوق ابداع التكوين الخارجي )
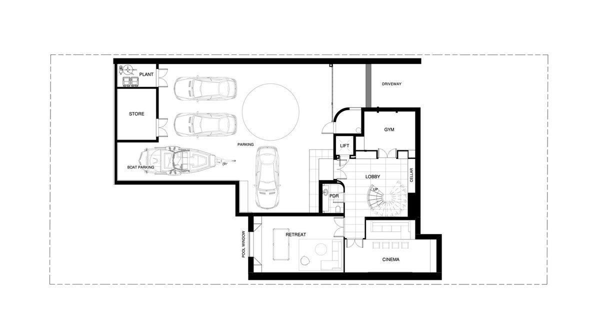
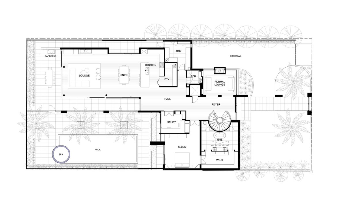
وهنا مخططات المنزل كاملة ,,,
وختاماً نشارككم صور متفرقة للمنزل .
دمتم بود 🌹

جاري تحميل الاقتراحات...