م.عبدالرحمن التركي
م.عبدالرحمن التركي

@ArchPlaces

11 تغريدة 75 قراءة Oct 13, 2020
اهلا وسهلا بكم ,,,
حديثنا اليوم عن منزل بسيط وصغير في فيتنام
اجمالي مسطح البناء 250 متر مربع فقط !
الميزانية في هذا المشروع كانت منخفضة جداً , وكان التحدي في ايجاد منتج جميل في نطاق الميزانية ,,,
ونعكس اثر محدودية الميزانية في تشطيب الواجهة بالدهان الأبيض فقط
ولاحظ كيف يتغير منظور الواجهة بين أوقات اليوم !!!
كما يلاحظ ان الواجهة الجانبية تكاد تكون مصمته تماماً لكون هناك مباني مجاورة في المستقبل
وهنا مدخل بسيط ورائع يربط الداخل بالخارج ,,,
يستقبلك بأختلاف مواد التشطيب فترى الخشب مميزاً عن باقي تشطيبات الواجهة ,,,
ولاحظ أن الواجهة الزجاجية مظللة بالكامل لا تدخلها الشمس وهذا من أهم الدراسات المعمارية ,,,
انظر إلى تميز المعماري وكيف جعل الإضاء وسيلة لتغيير المكان وكيف يختلف المكان جذرياً بين الليل والنهار ,,,
وهذه الصور لحركة سير الضيوف وكيفية انتقالهم من الخارج إلى مجلس الضيوف البسيط جداً وعلاقته مع قسم المعيشة ,,,
العمارة فن و وظيفة واقتصاد ,,,
وهنا قلب هذا المنزل حيث حياة العائلة ومعيشتهم مكان له مكانة وحيز واضح بأرتفاع مضاعف وتواصل بصري و إضاءة طبيعية وعلاقة وظيفية صحيحة ومسارات حركة مدروسة ,,,
فكر مرتين ونفذ مرة واحدة فقط !
وهنا نقول أن دراسة الإضاءة كفيلة بتغيير جميع تصوراتك عن الفراغ ,,,
لاحظ كيف استغل المصمم المساحة أسفل الدرج وكيف تم توظيفها بصرياً ,,,
وهنا بساطة غرف النوم , كما يلاجظ استخدام الخشب في الديكور الداخلي بسبب تكلفته المنخفضة ,,,
استغلال الموارد أهم من امتلاك المال ,,,
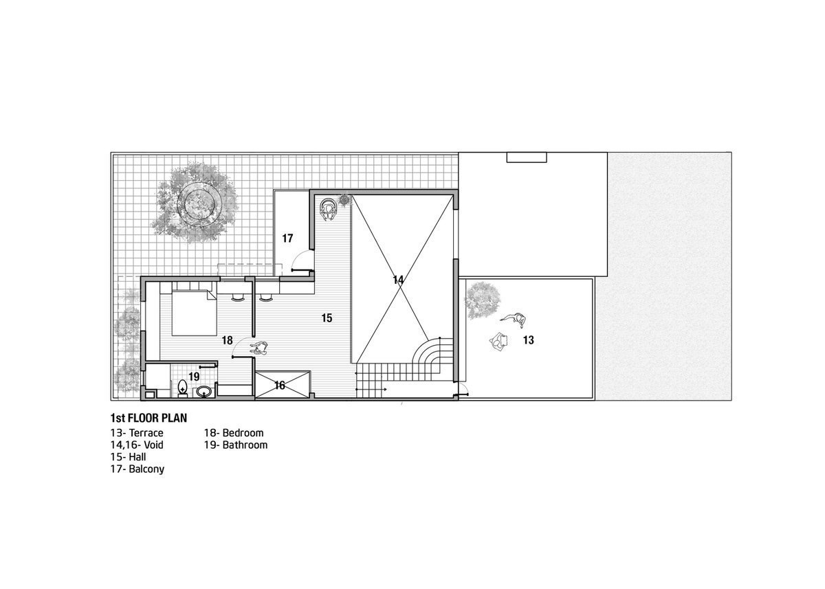
وهنا مخططات المنزل كاملة وموضح بها أسماء الفراغات ,,,
وختاما نشارككم صور متفرقة للمنزل
دمتم بود 🌹

جاري تحميل الاقتراحات...