م.عبدالرحمن التركي
م.عبدالرحمن التركي

@ArchPlaces

8 تغريدة 171 قراءة Sep 23, 2020
اهلا ومرحباً بكم ,,,
حديثنا اليوم عن فيلا سكنية في اندونيسيا , اجمالي مسطحات البناء 888 متر مربع ,,,
يثبت لنا هذا المنزل أن الاحساس بالفراغ اهم من بناء الفراغ وأن التصميم وجداني أكثر من كونه فيزيائي محسوس ,,,
المنزل أكبر من ان يكون تشييد للحوائط ,,,
وعلى غير العادة فإننا سوف نبدأ من داخل هذه الفيلا , لاحظ يا عزيزي أنه يختفي الفصل بين الداخل والخارج
كل محيط الأرض هو منزل للمالك فلماذا الفصل؟
التصميم هو المحدد في امكانية تحقيق رفاهية مطلقة للمستخدم النهائي,,,
أجوائنا قد تكون سبب في صعوبة تنفيذ مثل هذه الأفكار , لكنها ممكنه
لنتوقف قليلاً ,
المسبح في الصوره متصل بصرياً , ولكن وظيفياً يجب أن يكون مفصول , وقد تحقق من خلال باب جانبي ولكن بصرك يستمتع في كل لحظة وحين ,,,
مسبح خارجي يعلوه أحد غرف النوم أصبح جزء من المنزل دون ان يتطفل,,,
العمارة خليط من فن و وظيفة واقتصاد ,,,
ونتيجة لذلك فانظر إلى المنظر الذي تححق في صالة الجلوس الرئيسية
أكاد أجزم أن هذه الصالة اصغر مساحة من 90% من مساحة الصالات في الفلل السكنية في بلادنا !!!
ولكنها أفضل بسنين ضوئية بجماليتها واتساعها ,,,
وهنا يظهر جمال الفناء الداخلي الذي أعدم مفهوم " الداخل والخارج " ولاحظ أن بساطة الفناء بدون تكلف بتصميم الحدائق حقق
1/ تقليل تكلفة
2/ تحقيق سعة في الاتساع البصري
كما يظهر وجود الهيكل الإنشائي واستعماله جمالياً
الكتل والخطوط المعمارية الأساسية تشكل لك كل المنزل,,,
وهنا نرى جمالاً في تصميم واجهة حديثة ,
قليلة المواد بسيطة التنفيذ ملئية بالتفاصيل , والإضاءة نقلتها لمستوى آخر مختلف تماماً ,,,
تحقيق المتطلبات الإجتماعية في التصاميم المعمارية أمر مهم وممكن
إذا
كان
المصمم
(((معمارياً حقيقياً))),,,
وهنا صور متفرقة للمنزل ,,,
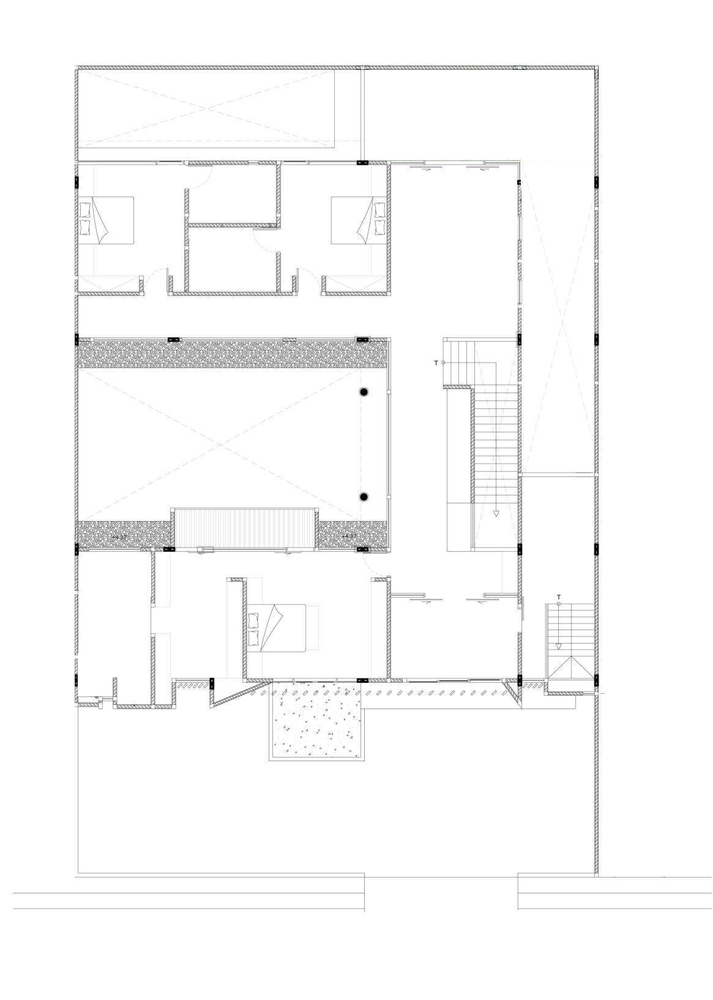
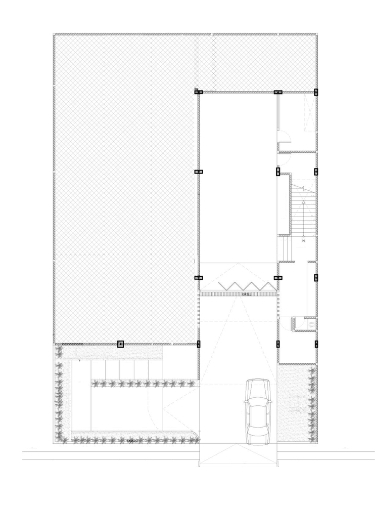
وختاماً نشارككم مخططات هذه الفيلا ,,,
دمتم بود 🌹

جاري تحميل الاقتراحات...