م.عبدالرحمن التركي
م.عبدالرحمن التركي

@ArchPlaces

14 تغريدة 23 قراءة Sep 20, 2020
اهلا وسهلا بكم ,,,
حديثنا اليوم عن منزل في تايلند , هذا المنزل في تايلند في مناخ معتدل ولكن الأهم أننا سوف نستعرض في مشروعنا القادم مثال مشابه وأكثر جمالية في الكويت,,
إجمالي مساحة الأرض 1000متر مربع ,
أبرز ما يميز هذا المشروع هو ان التكوين الكتلي يعطي واجهات جبارة ,,,
إن الصمت في حضرة الجمال جمال ,,,
ولكن الواجهات البسيطة تشكيلاً والمميزة تكويناً تعطينا نتائج جبارة بمادة تشطيب واحدة كالرخام أو البورسلان الرخامي
خصوصية كاملة , وجمالية عالية , ومواد تشطيب قليلة ,,,
والحرفيين المميزين هم من ينقل الرسومات والتصاميم إلى واقع محسوس,,,
يمكن اعتبار هذه الواجهة مهدئ أعصاب يؤخذ ليلاً ونهاراً ,
انظر إلى قوة الحضور للتكوين الكتلي وكيف أثر على استعمال مسطحات خضراء بدون أي تكلف ,
المبنى المميز يفرض نفسه في المكان والزمان ...
وهنا ملحق خارجي مع المنزل ,
نخجل حققة من أن نطلق عليه ملحق , فهو يفوق في جماله عدداً كبيراً من منازلنا 🥲
وقبل أن ننتقل إلى داخل هذا المنزل المميز دعونا نتفق أن البلكونة إذا لم تكن بمستوى جمالي عالي واطلالة مميزة فهي تفقد وظيفتها , فكم تقيم هذه البلكونات ؟,,,
الوظيفة للمعماري ان يدرك الإحتياجات من كل فراغ ثم يترجمها للواقع ويعزز من قيمتها ,,,
ومما يبين حرص المعماري في انتاج شئ مميز من هذا المشروع أنه قام بتحويل الدرج إلى عنصر جمالي جدا,,,
لو كان هذا الدرج في منزلك فهل تحتاج إلى مصعد ؟
وأما عن الصالة الرئيسية فنرى جمالاً رائعاً باستخدام نفس مادة التشطيب المستخدمة في الواجهة
إن الداخل والخارج في هذا المنزل واحد , فالجمال لا حدود له ,,,
وهل يُمل الجلوس في فراغ مثل هذا ؟!
وهنا مدخل المنزل المميز ,,,
وهنا غرف النوم في المنزل ,
روح المنزل واحدة , والزوايا الحادة حاضرة , والبساطة في التشطيب دائمة ,,,
وهنا نتوقف قليلاً في الجمال الموجود في دورات المياه ,
حيث أصبح الخشب خطاً فاصلاً بين البانيو وبين المغسلة , الجمال الموجود في التفاصيل لا يركز عليه غير المتخصص ولكنه يدركه
التفاصيل هي المحدد الرئيسي في جودة المعماري والمصمم الداخلي
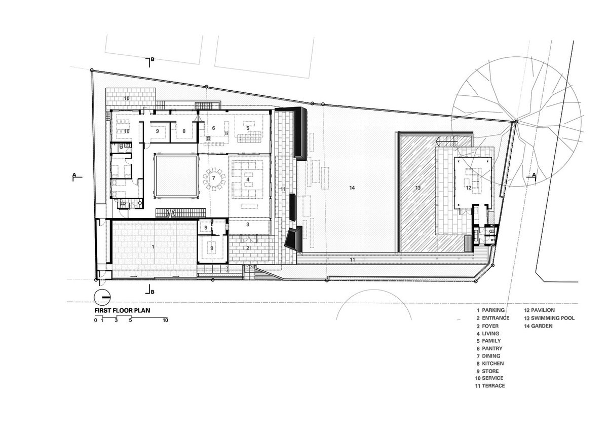
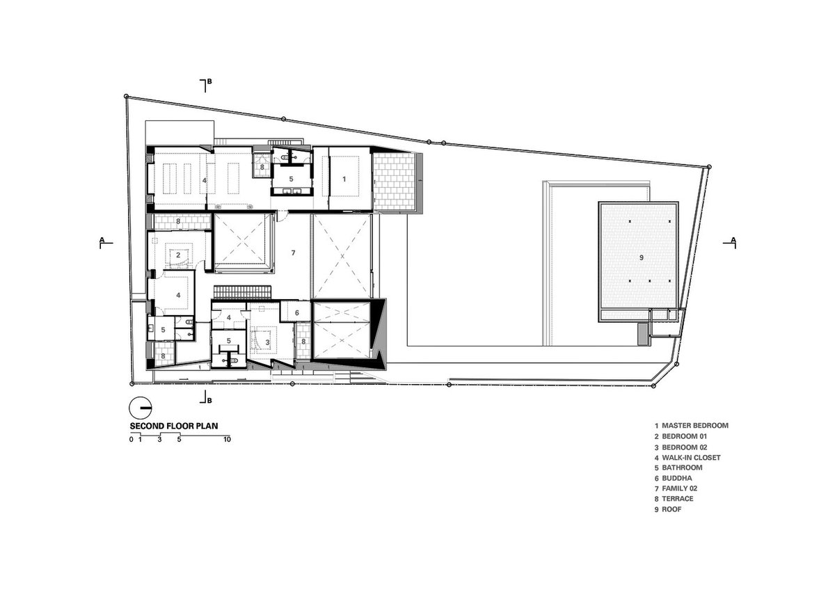
ونضيف أخيراً مخططات المنزل الرائع
مخططات بسيطة مع كتل رائعة بأيدي حرفيين مهرة ,,,
والنتيجة كما استعرضناها معكم ,
وختاماً نشارككم واجهات المنزل وعدداً من الصور ,
ونقول لكل من كان يقول أن المشاريع التي استعرضناها سابقاً لا تصلح لأجوائنا أن المشروع القادم هو الحكم ,,,
دمتم بود 🌹

جاري تحميل الاقتراحات...