م.عبدالرحمن التركي
م.عبدالرحمن التركي

@ArchPlaces

13 تغريدة 26 قراءة Aug 27, 2020
صباح الخير , حديثنا اليوم عن منزل في اندونيسيا
إجمالي المساحة 680 متر مربع فقط .
جلسة محفوفة بالماء والخضرة والضوء ,,,
سوف ترى يا عزيزي الماء يرحب بك عند المداخل ويستقبلك عند الجلسات الرئيسية
سوف ترى دراسة لدخول الضوء وتشكيله
سوف ترى بهواً يصنع للمكان رونقاً,,,
التشطيب النهائي للحوائط دهان أبيض فقط , ولن تلاحظ ذلك إلا بعد قرائتك لهذه المعلومة
المعماري يجيد التعامل مع العين ويوجهها
ودعنا نستوقف عند هذه الصورة قليلاً ,
تضاد بين الحوائط والأرضيات بيضاء فاتحة وارضيات غامقة
سقف مشع بالضوء وارض تستقبله بصمت
لا ترى حوائط تكسر امتداد بصرك
ولكي تكتمل الصورة ترة أن دربزين الدور العلوي من الزجاج من أسفله ضده الحجر
هل ستشعر بالضيق في هذا الفراغ,,,
وهنا من أكثر المناطق استخداماً في المنزل , المطبخ سوف ترى تكاملاً من أقصى اليمين إلى اليسار ,
خضرة وفناء في اليمين
طاولة طعام وجلسة خاصة أمامك
ضوء من أعلى البهو على يسارك
وأخيراً جلسة تكتمل مع المياه
صور تبين بساطة التشطيب وجمال النتيجة للمطبخ وحده
ارتداد مع الجار تم تشكيلة بشكل رائع جداً وتكاليف منخفضة ومصنعية عادية , والنتيجة مميزة
والمجلس اليومي بسيط وأنيق , يطل على كل أنحاء المنزل ,,,
أما ما يخص التكوين الخارجي
فهذا المنزل يبين أهمية التكامل بين الضوء والتشكيل الكتلي في خلق نتيجة مميزة ليست مكلفة
وأن الأشجار والطبيعة جمال من الخالق سبحانه لن يكون له بديل ,,,
زوايا متفرقة للتكوين الخارجي تبي جمال هذه الواجهة
وهنا المدخل الرئيسي المميز والفريد , تكوين متكامل وألوان مدروسة وبساطة غير معهوده ,,,
والنتيجة أكثر تميزاً وجمالاً وبساطة مما يكلف أضعاف في أسواقنا !!!
نصف المال نظرة ,,,,
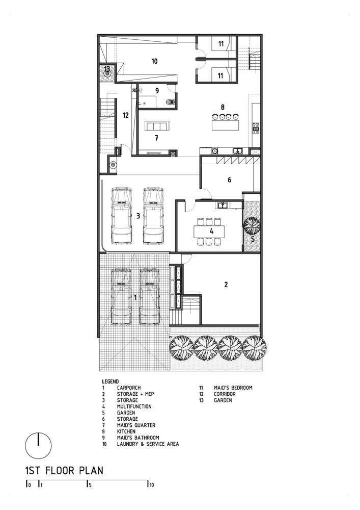
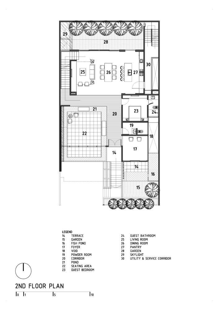
شرح مخططات المشروع
الدور الأرضي
1/موقف قراش لأربع سيارات
2/مجلسين
3/مطبخ
4/صالة طعام منفصلة
5/غرفتي نوم للخدم
الدور الأول
1/مجلس
2/طاولة طعام
3/مجلس مستقل
4/حناج نوم للضيوف
5/درج رئيسي ودرج خدمة
الدور الثاني
1/جناحي نوم رئيسيين
2/جناح نوم رئيسي
3/بهو و صالة
انظر إلى تصميم دورة المياه المميز , سوف ترى المغسلة واختفى عن ناظريك الكرسي ,
نظافة تخفي ورائها أسياء كثيرة
وختاماً صور متفرقة للمشروع .
ونقول أننا حرصنا أن يكون هذا المشروع جميلاً بطرق تنفيذ بسيطة يمكن لسوق المقاولات المتهالك في بلادنا أن يحاكي انتاجه ...
لعلنا في قادم الأيام نرى شركات تطوير بمستويات عالية
دمتم بود 🌹

جاري تحميل الاقتراحات...