بسم الله:
في هذا #الثريد سأستعرض #تجربتي_في_التعمير حيث أمضيت في تصميم المخطط(7)أشهر،ولقد ذكرتني هذه التجربة بتأليف الكتب!
•سأذكر الدروس الهامة والتي أرجو أن يُستفاد منها لمن أراد البدء في بناء منزل خاص به.
#نجران_الآن #نجران_الأن #نجران
#مراجعة_تصاميم_المتابعين #فيلا_ابومشرف
في هذا #الثريد سأستعرض #تجربتي_في_التعمير حيث أمضيت في تصميم المخطط(7)أشهر،ولقد ذكرتني هذه التجربة بتأليف الكتب!
•سأذكر الدروس الهامة والتي أرجو أن يُستفاد منها لمن أراد البدء في بناء منزل خاص به.
#نجران_الآن #نجران_الأن #نجران
#مراجعة_تصاميم_المتابعين #فيلا_ابومشرف
#تجربتي_في_التعمير
1️⃣بدأت قبل(7) أشهر في التخطيط للفيلا السكنية الخاصة بي،بدأت بمتابعة حسابات المصممين في المملكة ودول الخليج لأخذ الأفكار الحديثة في البناء وأخذت بزيارة بعض المباني في نجران ودخلت لليوتيوب.
#نجران_الآن #نجران_الأن #نجران
#مراجعة_تصاميم_المتابعين #فيلا_ابومشرف
1️⃣بدأت قبل(7) أشهر في التخطيط للفيلا السكنية الخاصة بي،بدأت بمتابعة حسابات المصممين في المملكة ودول الخليج لأخذ الأفكار الحديثة في البناء وأخذت بزيارة بعض المباني في نجران ودخلت لليوتيوب.
#نجران_الآن #نجران_الأن #نجران
#مراجعة_تصاميم_المتابعين #فيلا_ابومشرف
#تجربتي_في_التعمير
2️⃣كنت أسعى جاهداً للخروج من نظام الصندوق المغلق فوقع الاختيار على حرفU وبعد مضي شهرين من التخطيط بنظام حرف U غيرنا قراري أنا وأفراد العائلة لقناعتنا بأنه لا يتناسب مع الظروف البيئية.
#نجران_الآن #نجران_الأن #نجران
#مراجعة_تصاميم_المتابعين #فيلا_ابومشرف
2️⃣كنت أسعى جاهداً للخروج من نظام الصندوق المغلق فوقع الاختيار على حرفU وبعد مضي شهرين من التخطيط بنظام حرف U غيرنا قراري أنا وأفراد العائلة لقناعتنا بأنه لا يتناسب مع الظروف البيئية.
#نجران_الآن #نجران_الأن #نجران
#مراجعة_تصاميم_المتابعين #فيلا_ابومشرف
#تجربتي_في_التعمير
3️⃣حاولت أن أمزج بين نظام الصندوق وحرفUفبدأت بمسك الورقة والقلم ورسم عدة مخططات وعرضها على #تويتر لأخذ التغذية الراجعة وكذلك التواصل مع بعض الأصدقاء..وبدأت أحصل على مجموعة غرف يفصلها ممرات!
#نجران_الآن #نجران_الأن #نجران
#مراجعة_تصاميم_المتابعين #فيلا_ابومشرف
3️⃣حاولت أن أمزج بين نظام الصندوق وحرفUفبدأت بمسك الورقة والقلم ورسم عدة مخططات وعرضها على #تويتر لأخذ التغذية الراجعة وكذلك التواصل مع بعض الأصدقاء..وبدأت أحصل على مجموعة غرف يفصلها ممرات!
#نجران_الآن #نجران_الأن #نجران
#مراجعة_تصاميم_المتابعين #فيلا_ابومشرف
#تجربتي_في_التعمير
4️⃣زرت مكاتب هندسية وأعطيتهم أفكاري فلم ألاحظ إلا أنهم قاموا برسم ماتوصلت إليه بواسطة برنامج #الاوتوكاد مع اضافة بعض التحسينات،الأمر الذي جعلني اقتنع أحياناً بالمخطط وبعد فترة أرفضه تماماً.
#نجران_الآن #نجران_الأن #نجران
#مراجعة_تصاميم_المتابعين #فيلا_ابومشرف
4️⃣زرت مكاتب هندسية وأعطيتهم أفكاري فلم ألاحظ إلا أنهم قاموا برسم ماتوصلت إليه بواسطة برنامج #الاوتوكاد مع اضافة بعض التحسينات،الأمر الذي جعلني اقتنع أحياناً بالمخطط وبعد فترة أرفضه تماماً.
#نجران_الآن #نجران_الأن #نجران
#مراجعة_تصاميم_المتابعين #فيلا_ابومشرف
#تجربتي_في_التعمير
5️⃣من ضمن المعيقات التي واجهتني:
أن بعض الأشخاص يقولون انتبه لا يضحكون عليك المكاتب الهندسية ويأخذون فلوسك وحاول تروح لأكثر من مكتب وعطه200ريال ويسوي لك كروركي وبعدها صمم المخطط اللي تبغاه🤕
#نجران_الآن #نجران_الأن #نجران
#مراجعة_تصاميم_المتابعين #فيلا_ابومشرف
5️⃣من ضمن المعيقات التي واجهتني:
أن بعض الأشخاص يقولون انتبه لا يضحكون عليك المكاتب الهندسية ويأخذون فلوسك وحاول تروح لأكثر من مكتب وعطه200ريال ويسوي لك كروركي وبعدها صمم المخطط اللي تبغاه🤕
#نجران_الآن #نجران_الأن #نجران
#مراجعة_تصاميم_المتابعين #فيلا_ابومشرف
#تجربتي_في_التعمير
6️⃣نحن الآن في الشهر الرابع حيث زرت مكتب المدن الحديثة للاستشارات الهندسية بنجران ومازلت أحمل نفس الفكرة بأن أحصل على كروكي ب200 ريال وأضيفه للملف الأزرق المتواجد على طبلون السيارة.
#نجران_الآن #نجران_الأن #نجران
#مراجعة_تصاميم_المتابعين #فيلا_ابومشرف
6️⃣نحن الآن في الشهر الرابع حيث زرت مكتب المدن الحديثة للاستشارات الهندسية بنجران ومازلت أحمل نفس الفكرة بأن أحصل على كروكي ب200 ريال وأضيفه للملف الأزرق المتواجد على طبلون السيارة.
#نجران_الآن #نجران_الأن #نجران
#مراجعة_تصاميم_المتابعين #فيلا_ابومشرف
#تجربتي_في_التعمير
7️⃣أُستقبلت بكل حفاوة وبدأت مواصلة ماتبقى من رحلة الأربعة الأشهر وبدأت التحسينات على الكروكيات السابقة مع المهندس قوبان،وشعرت بأن هناك فرق ولكن مازال هناك عدم قناعة وخاصة في كثرة الممرات.
#نجران_الآن #نجران_الأن #نجران
#مراجعة_تصاميم_المتابعين #فيلا_ابومشرف
7️⃣أُستقبلت بكل حفاوة وبدأت مواصلة ماتبقى من رحلة الأربعة الأشهر وبدأت التحسينات على الكروكيات السابقة مع المهندس قوبان،وشعرت بأن هناك فرق ولكن مازال هناك عدم قناعة وخاصة في كثرة الممرات.
#نجران_الآن #نجران_الأن #نجران
#مراجعة_تصاميم_المتابعين #فيلا_ابومشرف
#تجربتي_في_التعمير
8️⃣زرت فلل في الرياض وجدة لأخذ مجموعة من الأفكار التي تتناسب مع احتياج العائلة وكانت هناك فائدة ولكن مازال رأس الخيط مفقود،ومازلت ألجأ إلى الورقة والقلم وترجمة ماتوصلت إليه لأشكال هندسية.
#نجران_الآن #نجران_الأن #نجران
#مراجعة_تصاميم_المتابعين #فيلا_ابومشرف
8️⃣زرت فلل في الرياض وجدة لأخذ مجموعة من الأفكار التي تتناسب مع احتياج العائلة وكانت هناك فائدة ولكن مازال رأس الخيط مفقود،ومازلت ألجأ إلى الورقة والقلم وترجمة ماتوصلت إليه لأشكال هندسية.
#نجران_الآن #نجران_الأن #نجران
#مراجعة_تصاميم_المتابعين #فيلا_ابومشرف
#تجربتي_في_التعمير
9️⃣في هذه الأثناء مازال التواصل مستمر مع أشخاص لهم مني كل التقدير لما قدموه من أفكار وهم:م.عبدالله ال بشر،د.حسين آل مشرف،خالد حريش ال مستنير ،بندر صلة،علي آل حشوان..وفجأة أفرح بما يبعدني من المواصلة🤕
#نجران_الآن #نجران_الأن #نجران
#مراجعة_تصاميم_المتابعين
9️⃣في هذه الأثناء مازال التواصل مستمر مع أشخاص لهم مني كل التقدير لما قدموه من أفكار وهم:م.عبدالله ال بشر،د.حسين آل مشرف،خالد حريش ال مستنير ،بندر صلة،علي آل حشوان..وفجأة أفرح بما يبعدني من المواصلة🤕
#نجران_الآن #نجران_الأن #نجران
#مراجعة_تصاميم_المتابعين
#تجربتي_في_التعمير
1️⃣0️⃣ انفكت العقدة😄وعدت لمكتب المدن الحديثة لشعوري بأنني سأجد ضالتي عنده وقلت بأن له من اسمه نصيب وسأجد الطراز الحديث الذي يتناسب مع أفكاري واحتياجاتي.
حيث كانت هذه الزيارة مختلفة😇😇
#نجران_الآن #نجران_الأن #نجران
#مراجعة_تصاميم_المتابعين #فيلا_ابومشرف
1️⃣0️⃣ انفكت العقدة😄وعدت لمكتب المدن الحديثة لشعوري بأنني سأجد ضالتي عنده وقلت بأن له من اسمه نصيب وسأجد الطراز الحديث الذي يتناسب مع أفكاري واحتياجاتي.
حيث كانت هذه الزيارة مختلفة😇😇
#نجران_الآن #نجران_الأن #نجران
#مراجعة_تصاميم_المتابعين #فيلا_ابومشرف
#تجربتي_في_التعمير
1️⃣1️⃣في هذه المرة استقبلني م.محمد حترش @mohdhatrash وقال:
"كنت متابع لك بتويتر الفترة السابقة وعرفت في ماذا تفكر،ولكنك لم تصل إلى ماترغب فيه"😔هذه الكلمات جعلتني أتأكد بأنني في المكان الصحيح.
#نجران_الآن #نجران_الأن #نجران
#مراجعة_تصاميم_المتابعين #فيلا_ابومشرف
1️⃣1️⃣في هذه المرة استقبلني م.محمد حترش @mohdhatrash وقال:
"كنت متابع لك بتويتر الفترة السابقة وعرفت في ماذا تفكر،ولكنك لم تصل إلى ماترغب فيه"😔هذه الكلمات جعلتني أتأكد بأنني في المكان الصحيح.
#نجران_الآن #نجران_الأن #نجران
#مراجعة_تصاميم_المتابعين #فيلا_ابومشرف
#تجربتي_في_التعمير
1️⃣2️⃣طلب مني جميع الكروكيات وجعلني أتكلم لمدة40دقيقة وهو يقوم بالتدوين دون مقاطعتي،وبعدها طلب مني موقع الأرض فإذا به يستعرضها على شاشة البلازما من خلالGoogle earth ويحدد جهة الشروق والغروب☀️
#نجران_الآن #نجران_الأن #نجران
#مراجعة_تصاميم_المتابعين #فيلا_ابومشرف
1️⃣2️⃣طلب مني جميع الكروكيات وجعلني أتكلم لمدة40دقيقة وهو يقوم بالتدوين دون مقاطعتي،وبعدها طلب مني موقع الأرض فإذا به يستعرضها على شاشة البلازما من خلالGoogle earth ويحدد جهة الشروق والغروب☀️
#نجران_الآن #نجران_الأن #نجران
#مراجعة_تصاميم_المتابعين #فيلا_ابومشرف
#تجربتي_في_التعمير
1️⃣3️⃣بدأ يسألني عن أفراد الأسرة وطبيعة المناسبات العائلية والعدد المتوقع لحضور تلك المناسبات وكذلك الجيران وعلاقتي بهم والعديد من الأسئلة التي استغربت حينها🤔ولكني لم أعرف السبب إلا لاحقاً🙃
#نجران_الآن #نجران_الأن #نجران
#مراجعة_تصاميم_المتابعين #فيلا_ابومشرف
1️⃣3️⃣بدأ يسألني عن أفراد الأسرة وطبيعة المناسبات العائلية والعدد المتوقع لحضور تلك المناسبات وكذلك الجيران وعلاقتي بهم والعديد من الأسئلة التي استغربت حينها🤔ولكني لم أعرف السبب إلا لاحقاً🙃
#نجران_الآن #نجران_الأن #نجران
#مراجعة_تصاميم_المتابعين #فيلا_ابومشرف
#تجربتي_في_التعمير
1️⃣4️⃣قال سيتم التواصل معك عن طريق zoom لاستعراض الكروكيات
وأتمنى أن يكونوا أفراد العائلة معك أثناء العرض ليتم التعديل حسب رغبتكم لأنكم من سيسكن الفيلا،ودورنا يبقى توظيف الهندسة بما يخدمكم😌
#نجران_الآن #نجران_الأن #نجران
#مراجعة_تصاميم_المتابعين #فيلا_ابومشرف
1️⃣4️⃣قال سيتم التواصل معك عن طريق zoom لاستعراض الكروكيات
وأتمنى أن يكونوا أفراد العائلة معك أثناء العرض ليتم التعديل حسب رغبتكم لأنكم من سيسكن الفيلا،ودورنا يبقى توظيف الهندسة بما يخدمكم😌
#نجران_الآن #نجران_الأن #نجران
#مراجعة_تصاميم_المتابعين #فيلا_ابومشرف
#تجربتي_في_التعمير
1️⃣5️⃣توالت الاجتماعات عبر منصة zoom والواتساب ثم حدد موعد في المكتب لاستعراض ماتوصلوا إليه عبر شاشة العرض بحضور المصمم والمهندس المعماري وبدأ توضيح أدق التفاصيل حيث رأيت الفيلا قبل أن تُبنى.
#نجران_الآن #نجران_الأن #نجران
#مراجعة_تصاميم_المتابعين #فيلا_ابومشرف
1️⃣5️⃣توالت الاجتماعات عبر منصة zoom والواتساب ثم حدد موعد في المكتب لاستعراض ماتوصلوا إليه عبر شاشة العرض بحضور المصمم والمهندس المعماري وبدأ توضيح أدق التفاصيل حيث رأيت الفيلا قبل أن تُبنى.
#نجران_الآن #نجران_الأن #نجران
#مراجعة_تصاميم_المتابعين #فيلا_ابومشرف
#تجربتي_في_التعمير
1️⃣6️⃣ خلال هذه الفترة وصلني تصاميم 3D للواجهات الخارجية وأخذ الرأي فيها إلى أن توصلنا إلى مستوى عالي جداً من القناعة، وأحياناً أبدي بعض الآراء فيعارضني م.محمد بحجة أنها غير مقبولة هندسيا😬
#نجران_الآن #نجران_الأن #نجران
#مراجعة_تصاميم_المتابعين #فيلا_ابومشرف
1️⃣6️⃣ خلال هذه الفترة وصلني تصاميم 3D للواجهات الخارجية وأخذ الرأي فيها إلى أن توصلنا إلى مستوى عالي جداً من القناعة، وأحياناً أبدي بعض الآراء فيعارضني م.محمد بحجة أنها غير مقبولة هندسيا😬
#نجران_الآن #نجران_الأن #نجران
#مراجعة_تصاميم_المتابعين #فيلا_ابومشرف
#تجربتي_في_التعمير
1️⃣3️⃣بدأ يسألني عن أفراد الأسرة وطبيعة المناسبات العائلية والعدد المتوقع لحضور تلك المناسبات وكذلك الجيران وعلاقتي بهم والعديد من الأسئلة التي استغربت حينها🤔ولكني لم أعرف السبب إلا لاحقاً🙃
#نجران_الآن #نجران_الأن #نجران
#مراجعة_تصاميم_المتابعين #فيلا_ابومشرف
1️⃣3️⃣بدأ يسألني عن أفراد الأسرة وطبيعة المناسبات العائلية والعدد المتوقع لحضور تلك المناسبات وكذلك الجيران وعلاقتي بهم والعديد من الأسئلة التي استغربت حينها🤔ولكني لم أعرف السبب إلا لاحقاً🙃
#نجران_الآن #نجران_الأن #نجران
#مراجعة_تصاميم_المتابعين #فيلا_ابومشرف
#تجربتي_في_التعمير
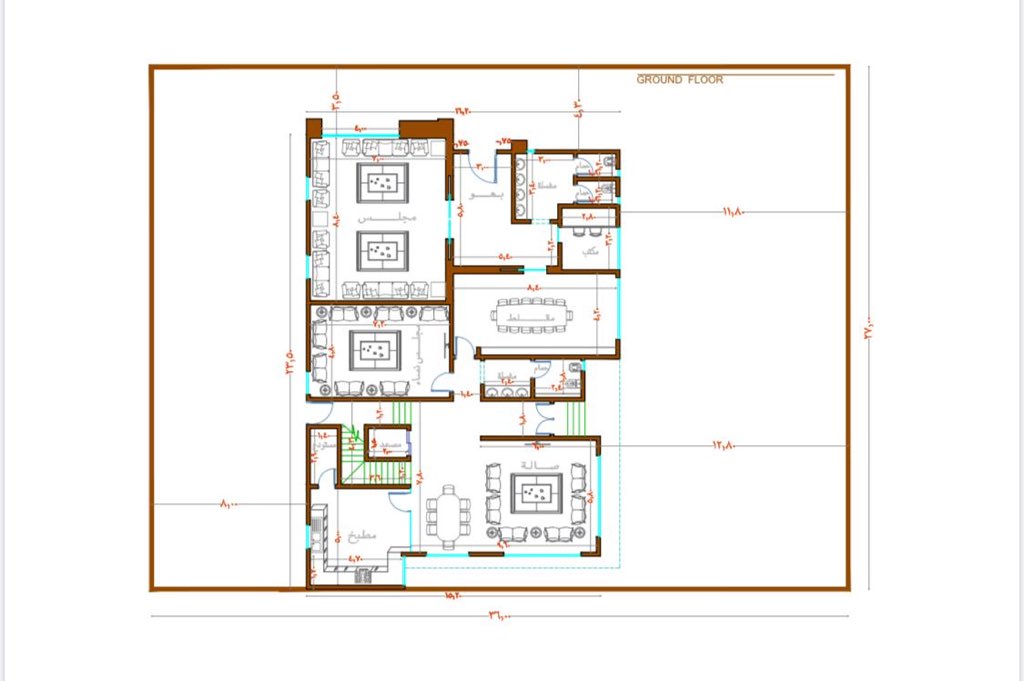
1️⃣7️⃣ في هذه التغريدة سأقدم لكم كروكي الفيلا .. كان للمهندس @mohdhatrash لمسة ابداع وراءها خبرة في التصميم وكيفية اشباع رغبة العميل بما يتناسب مع احتياجاته.
#نجران_الآن #نجران_الأن #نجران
#مراجعة_تصاميم_المتابعين #فيلا_ابومشرف
1️⃣7️⃣ في هذه التغريدة سأقدم لكم كروكي الفيلا .. كان للمهندس @mohdhatrash لمسة ابداع وراءها خبرة في التصميم وكيفية اشباع رغبة العميل بما يتناسب مع احتياجاته.
#نجران_الآن #نجران_الأن #نجران
#مراجعة_تصاميم_المتابعين #فيلا_ابومشرف
#تجربتي_في_التعمير
1️⃣8️⃣وفي هذه التغريدة تجدون خلاصة سبعة أشهر فشكراً لكل من شاركني برأيه وشكراً للمهندس المتميز:@mohdhatrash فأنا محظوظ جداً بمعرفته لأنه صادفني في طريق كنت تائهاً فيه فساعدني بترتيب أفكاري🌷
#نجران_الآن #نجران_الأن #نجران
#مراجعة_تصاميم_المتابعين #فيلا_ابومشرف
1️⃣8️⃣وفي هذه التغريدة تجدون خلاصة سبعة أشهر فشكراً لكل من شاركني برأيه وشكراً للمهندس المتميز:@mohdhatrash فأنا محظوظ جداً بمعرفته لأنه صادفني في طريق كنت تائهاً فيه فساعدني بترتيب أفكاري🌷
#نجران_الآن #نجران_الأن #نجران
#مراجعة_تصاميم_المتابعين #فيلا_ابومشرف
1️⃣9️⃣ترددت كثيراً في نشر #تجربتي_في_التعمير لعدة أسباب ولكن عندما تذكرت قول الرسول(ص):"خير الناس أنفعهم للناس"ذابت تلك الأسباب.
ولعلمي بأن هناك الكثير يزور ويتصفح حسابي فرأيت نقل التجربة ليستفيد منها الجميع.
#نجران_الآن #نجران_الأن #نجران
#مراجعة_تصاميم_المتابعين #فيلا_ابومشرف
ولعلمي بأن هناك الكثير يزور ويتصفح حسابي فرأيت نقل التجربة ليستفيد منها الجميع.
#نجران_الآن #نجران_الأن #نجران
#مراجعة_تصاميم_المتابعين #فيلا_ابومشرف
2️⃣0️⃣شهر #أبريل و #مايو حيث الأمطار والأجواء الربيعية،ولكن كيف المتعة بذلك ونحن داخل منازلنا؟إما أن نفتح الباب وسرعان مايدخل المطر أو تجد جميع أفراد العائلة يتزاحمون عند الدريشة المطلة على الحوش(بيوتنا سجون)!😔
#نجران_الآن #نجران_الأن #نجران
#مراجعة_تصاميم_المتابعين #فيلا_ابومشرف
#نجران_الآن #نجران_الأن #نجران
#مراجعة_تصاميم_المتابعين #فيلا_ابومشرف
2️⃣1️⃣لكي تستمتع بالجلوس بمنزلك لابد أن تطل الصالة العائلية(بواجهات زجاجية كبيرة)على حديقة منزلية خاصة،وهذا يعطيك امتداد بصري للخارج وأنت داخل الصالة ويشعرك بأنك بمنتجع بدلا من الوقوف أمام الدريشة😄أو دكة الباب.
#نجران_الآن #نجران_الأن #نجران
#مراجعة_تصاميم_المتابعين #فيلا_ابومشرف
#نجران_الآن #نجران_الأن #نجران
#مراجعة_تصاميم_المتابعين #فيلا_ابومشرف
2️⃣2️⃣أثناء كتابة مؤلفي الأول #الاستثمار_في_الأبناء أمضيت4سنوات وأكثرتُ المراجعة ظناً بأنه سيُطبع بدون أخطاء وعند استلامي لأول نسخة وقعت عيني على خطأ في ثاني صفحة😄ذكرني هذا ببرنامج تصميم3D فهو يقلل من نسبة الأخطاء ولكن لا يلغيها.
#نجران_الآن #نجران_الأن
#مراجعة_تصاميم_المتابعين
#نجران_الآن #نجران_الأن
#مراجعة_تصاميم_المتابعين
2️⃣3️⃣من دروس #تجربتي_في_البناء أنصح من أراد البناء أن يبتعد عن المخططات المكررة ويستعين بالمهندسين ذوي الخبرة وأن لا يستكثر أي مبلغ في ذلك فالمخطط الجيد سيوفر عليك الكثير(ابتعد من كروكي أبو200)😄
@6wr_Mnzlk
#نجران_الآن #نجران_الأن #نجران
#مراجعة_تصاميم_المتابعين #فيلا_ابومشرف
@6wr_Mnzlk
#نجران_الآن #نجران_الأن #نجران
#مراجعة_تصاميم_المتابعين #فيلا_ابومشرف
2️⃣4️⃣ #تجربتي_في_التعمير
بفضل من الله..تم استلام المخطط التنفيذي من @mcec_ksa ونسأل الله العون والتوفيق.
#شكراً:
م.محمد حترش @mohdhatrash
م.عادل مساعد
م.قوبان
ولكل منسوبي مكتب المدن الحديثة.
#نجران_الآن #نجران_الأن #نجران
#مراجعة_تصاميم_المتابعين #فيلا_ابومشرف #مخططات_فلل
بفضل من الله..تم استلام المخطط التنفيذي من @mcec_ksa ونسأل الله العون والتوفيق.
#شكراً:
م.محمد حترش @mohdhatrash
م.عادل مساعد
م.قوبان
ولكل منسوبي مكتب المدن الحديثة.
#نجران_الآن #نجران_الأن #نجران
#مراجعة_تصاميم_المتابعين #فيلا_ابومشرف #مخططات_فلل
2️⃣5️⃣ضمن #تجربتي_في_التعمير وصلني كتاب #أخطاء_في_البناء من @nsnasksa من تأليف م.عبدالغني الجند @ssrrr22 نسأل الله العون والتوفيق،ومتفاءل بأنه سيضيف الشيئ الكثير خاصة وأنه تم رصده من البيئة المحلية.
#نجران_الآن #نجران_الأن #نجران
#مراجعة_تصاميم_المتابعين #فيلا_ابومشرف #مخططات_فلل
#نجران_الآن #نجران_الأن #نجران
#مراجعة_تصاميم_المتابعين #فيلا_ابومشرف #مخططات_فلل
2️⃣6️⃣ #تجربتي_في_التعمير
شكراً @mcec_ksa على حرصكم لتنفيذ جميع المواصفات الواردة في المخطط على أرض الواقع ونسأل الله العون والتوفيق.
#شكراً:
م.محمد حترش @mohdhatrash
م.منصور الربيد
م.أحمد سمير
#نجران_الآن #نجران_الأن #نجران
#مراجعة_تصاميم_المتابعين #فيلا_ابومشرف #مخططات_فلل
شكراً @mcec_ksa على حرصكم لتنفيذ جميع المواصفات الواردة في المخطط على أرض الواقع ونسأل الله العون والتوفيق.
#شكراً:
م.محمد حترش @mohdhatrash
م.منصور الربيد
م.أحمد سمير
#نجران_الآن #نجران_الأن #نجران
#مراجعة_تصاميم_المتابعين #فيلا_ابومشرف #مخططات_فلل
2️⃣7️⃣ #تجربتي_في_التعمير
مرحلة مابعد الأعمدة وقبل البناء مهمة ولاتقل أهمية عن مرحلة المخطط لأنه تتضح فيها معالم الفيلا على الطبيعة ولقد أحضرت مصمم الديكورات الداخلية فقام ببعض التعديلات للأفضل والأوفر.
#نجران_الآن #نجران_الأن
#مراجعة_تصاميم_المتابعين #فيلا_ابومشرف #مخططات_فلل
مرحلة مابعد الأعمدة وقبل البناء مهمة ولاتقل أهمية عن مرحلة المخطط لأنه تتضح فيها معالم الفيلا على الطبيعة ولقد أحضرت مصمم الديكورات الداخلية فقام ببعض التعديلات للأفضل والأوفر.
#نجران_الآن #نجران_الأن
#مراجعة_تصاميم_المتابعين #فيلا_ابومشرف #مخططات_فلل
2️⃣8️⃣ #تجربتي_في_التعمير
بفضل الله تم الاتفاق مع مصمم الديكور:ظافر حسين آل قدرة(أبو ثامر)في تصميم وتنفيذ الديكورات الداخلية،أبو ثامر صاحب ذائقة فنية راقية ويبحر بنا في أدق التفاصيل الداخلية ومازلنا في البداية.
#نجران_الآن #نجران_الأن #نجران
#مراجعة_تصاميم_المتابعين #فيلا_ابومشرف
بفضل الله تم الاتفاق مع مصمم الديكور:ظافر حسين آل قدرة(أبو ثامر)في تصميم وتنفيذ الديكورات الداخلية،أبو ثامر صاحب ذائقة فنية راقية ويبحر بنا في أدق التفاصيل الداخلية ومازلنا في البداية.
#نجران_الآن #نجران_الأن #نجران
#مراجعة_تصاميم_المتابعين #فيلا_ابومشرف
#تجربتي_في_التعمير
2️⃣9️⃣ يظهر المصمم ظافر آل قدرة(أبو ثامر)مع الكهربائي والسباك وذلك لتحديد نقاط الكهرباء والسباكة وفق المعايير المهنية وهذه الخطوة مهمة جداً لتلافي وضع بعض النقاط في غير أماكنها والتكسير أثناء التشطيب.
#نجران_الآن #نجران
#مراجعة_تصاميم_المتابعين #فيلا_ابومشرف
2️⃣9️⃣ يظهر المصمم ظافر آل قدرة(أبو ثامر)مع الكهربائي والسباك وذلك لتحديد نقاط الكهرباء والسباكة وفق المعايير المهنية وهذه الخطوة مهمة جداً لتلافي وضع بعض النقاط في غير أماكنها والتكسير أثناء التشطيب.
#نجران_الآن #نجران
#مراجعة_تصاميم_المتابعين #فيلا_ابومشرف
3️⃣1️⃣ #تجربتي_في_التعمير
المصمم:ظافر قدرة(أبو ثامر) @dndh20 يبدأ والنتيجة النهائية مكتملة ويركز على أدق التفاصيل في البداية ليحميك من المبالغ الباهظة والأخطاء الفادحة،في كل جزئية يوازن بين الوظيفة والجمالية.
#نجران_الآن #نجران_الأن #نجران
#مراجعة_تصاميم_المتابعين #فيلا_ابومشرف
المصمم:ظافر قدرة(أبو ثامر) @dndh20 يبدأ والنتيجة النهائية مكتملة ويركز على أدق التفاصيل في البداية ليحميك من المبالغ الباهظة والأخطاء الفادحة،في كل جزئية يوازن بين الوظيفة والجمالية.
#نجران_الآن #نجران_الأن #نجران
#مراجعة_تصاميم_المتابعين #فيلا_ابومشرف
3️⃣2️⃣ #تجربتي_في_التعمير
أحبتي:
أحتاج متخصص في تنفيذ تجميل المساحات المحيطة بالفيلا Landscaping ، أرجو من لديه خبرة في هذا المجال أو يعرف أحد التواصل معي على: 0504568611 علماً بأن التصميم 3D جاهز لدي.
#نجران_الآن #نجران_الأن #نجران
#مراجعة_تصاميم_المتابعين #فيلا_ابومشرف
أحبتي:
أحتاج متخصص في تنفيذ تجميل المساحات المحيطة بالفيلا Landscaping ، أرجو من لديه خبرة في هذا المجال أو يعرف أحد التواصل معي على: 0504568611 علماً بأن التصميم 3D جاهز لدي.
#نجران_الآن #نجران_الأن #نجران
#مراجعة_تصاميم_المتابعين #فيلا_ابومشرف
3️⃣3️⃣ #تجربتي_في_التعمير
المصمم:ظافر قدرة(أبو ثامر)أثناء الاشراف على تأسيسات الكهرباء والسباكة حسب المخطط وبما يتناسب مع الديكورات والأثاث..هذه المرحلة من أهم المراحل التي يغفل عنها الكثير فيدفع الثمن وقت التأثيث.@dndh20
#نجران_الآن #نجران
#مراجعة_تصاميم_المتابعين #فيلا_ابومشرف
المصمم:ظافر قدرة(أبو ثامر)أثناء الاشراف على تأسيسات الكهرباء والسباكة حسب المخطط وبما يتناسب مع الديكورات والأثاث..هذه المرحلة من أهم المراحل التي يغفل عنها الكثير فيدفع الثمن وقت التأثيث.@dndh20
#نجران_الآن #نجران
#مراجعة_تصاميم_المتابعين #فيلا_ابومشرف
3️⃣4️⃣ #تجربتي_في_التعمير
بعون الله تم صباح اليوم الاتفاق مع المصمم ظافر آل قدرة للبدء في أعمال التشطيب (كهرباء، سباكة، تلياس، جبسيات، رخام، دهانات، أعمال الديكورات الداخلية)أبو ثامر: أثق بأنك ستصنع أنموذجاً للفيلا الحديثة في نجران.🌾 @dndh20
#فيلا_أبومشرف #نجران_الآن
بعون الله تم صباح اليوم الاتفاق مع المصمم ظافر آل قدرة للبدء في أعمال التشطيب (كهرباء، سباكة، تلياس، جبسيات، رخام، دهانات، أعمال الديكورات الداخلية)أبو ثامر: أثق بأنك ستصنع أنموذجاً للفيلا الحديثة في نجران.🌾 @dndh20
#فيلا_أبومشرف #نجران_الآن
3️⃣5️⃣ #تجربتي_في_التعمير
بدأنا اليوم في إنهاء اللمسات الأخيرة في مخطط المساحات المحيطة بالفيلا Landscaping وذلك مع المصمم ظافر آل قدرة وأنصح المقبلين على التعمير أن يعطون ذلك اهتمام لايقل شأن عن اهتمامهم بالفيلا نفسها لأنها الروح والمتنفس للحياة داخل المنزل.
#فيلا_أبومشرف #نجران
بدأنا اليوم في إنهاء اللمسات الأخيرة في مخطط المساحات المحيطة بالفيلا Landscaping وذلك مع المصمم ظافر آل قدرة وأنصح المقبلين على التعمير أن يعطون ذلك اهتمام لايقل شأن عن اهتمامهم بالفيلا نفسها لأنها الروح والمتنفس للحياة داخل المنزل.
#فيلا_أبومشرف #نجران
3️⃣6️⃣ #تجربتي_في_التعمير
أحتاج متخصص في تمديدات ليات الري الخاصة بـ Landscaping (أحواض حدائق،مسطحات خضراء) أرجو التواصل واتساب على : 0504568611 #نجران #نجران_الآن #فيلا_أبو_مشرف
أحتاج متخصص في تمديدات ليات الري الخاصة بـ Landscaping (أحواض حدائق،مسطحات خضراء) أرجو التواصل واتساب على : 0504568611 #نجران #نجران_الآن #فيلا_أبو_مشرف
3️⃣7️⃣ #تجربتي_في_التعمير
مخطط الـ Landscaping لايقل شأن وجهد ووقت عن مخطط الفيلا ،ولكن المصمم ظافر آل قدرة (أبوثامر) يختصر عليك مسافات طويلة وجهد، يدخل بك في أدق التفاصيل ليجعلك تتخيل الصورة ثم يجعلك تبني وتهدم على الورق، شكراً أبو ثامر. #نجران_الان #نجران
#فيلا_أبو_مشرف @dndh20
مخطط الـ Landscaping لايقل شأن وجهد ووقت عن مخطط الفيلا ،ولكن المصمم ظافر آل قدرة (أبوثامر) يختصر عليك مسافات طويلة وجهد، يدخل بك في أدق التفاصيل ليجعلك تتخيل الصورة ثم يجعلك تبني وتهدم على الورق، شكراً أبو ثامر. #نجران_الان #نجران
#فيلا_أبو_مشرف @dndh20
3️⃣8️⃣ #تجربتي_في_التعمير
التواصل مع المصمم يبدأ منذ استلامك للكروكي لأنه سيساعد في التعديلات ومقاسات النوافذ والأبواب بما يتناسب مع الديكور الداخلي،ونقاط الكهرباء والسباكة.
في هذا المجال أنصح بالمصمم أبو ثامر @dndh20 وكذلك تصميم Landscapingوالديكورات الداخلية.
#نجران #نجران_الان
التواصل مع المصمم يبدأ منذ استلامك للكروكي لأنه سيساعد في التعديلات ومقاسات النوافذ والأبواب بما يتناسب مع الديكور الداخلي،ونقاط الكهرباء والسباكة.
في هذا المجال أنصح بالمصمم أبو ثامر @dndh20 وكذلك تصميم Landscapingوالديكورات الداخلية.
#نجران #نجران_الان
جاري تحميل الاقتراحات...