معماري l سراج الدين جبر
معماري l سراج الدين جبر

@SerajadeenHJ

15 تغريدة 136 قراءة May 01, 2020
#البساطة تختصر الكثير
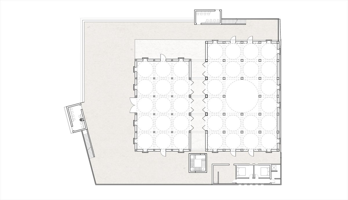
مجمّع #الحكمة في #النيجر
من #مسجد قديم الى مركز ثقافي وديني
من تصميم
@ateliermasomi
Studio Chahar
للاطلاع اكثر أسفل التغريدة ??
@turkialhussini1 @AlgfariMussad @eng_altamimi2 @SaudiProject @ipmbc @wajehaat @assrdesign @ProDesi2
مجمع الحكمة هو عبارة عن مسجد قديم لم يتم صيانته منذ أكثر من 20 عامًا كما قالت مريم كامارا مؤسس أتيليه ماسومي ، تم تحويل المسجد إلى مكتبة بناءً على اقتراح من أفراد المجتمع ،حيث تم إعادة بناء جميع الواجهات ، بالإضافة إلى أقسام كبيرة من السقف واعادة تصميم بنيته الداخلية.
تم إزالة جميع الإضافات الهيكلية إلى المكتبة الجديدة أو إعادة توجيهها وتصميم ارفف للكتب كفواصل للمساحات الدراسية الخاصة والجماعية ، وأضيف طابق الميزانين من الخشب والمعدن لتوفير مساحة إضافية. تمت إضافة فصول دراسية إضافية للسماح بمساحات اجتماعات المجتمع ودروس محو أمية الكبار.
والميزانيين هو عبارة عن أرضية وسطية تبنى بين الطوابق الرئيسية لمبنى، وتكون مقبلة على طابق المتواجدة فيه، وتكون مساحتها أصغر من مساحة طابق المبنى، وبالتالي فهي لا تحصى من بين الطوابق الإجمالية للمبنى.
- تم تصميم المكتبة للتفاعل مع المسجد الجديد ، الذي صممه أيضًا أتيليه ماسومي ، مع كلا المبنيين على نفس المحور
- المدخل الرئيسي للمكتبة ، الواقع إلى الجنوب ، يواجه المدخل الرئيسي للمسجد ، الواقع على الواجهة المواجهة للشمال.
وقال كامارا "أردنا تمكين الحوار وأيضًا التفكير في شيء نشعر أنه يجري في جميع أنحاء العالم بين المعرفة الدينية والعلمية".
"أنت تعرف ، حقيقة أن هناك شعورًا بأن الاثنين لا يمكن أن يتعايشا في نفس المكان."
تعاونت كمارا مع المهندس المعماري الإيراني ياسمان إسماعيلي
وقال كامارا "كلانا يأتي من دول إسلامية ، لذا فإن هذا الحوار برمته بين الإسلام والمعرفة العلمية كان مثيرا للاهتمام بالنسبة لنا"
"أحد أهم الأشياء في الإسلام هو السعي وراء المعرفة. إنه في الواقع مطلب ولكن لم يتم الحديث عنه مطلقًا. لقد تناولنا المشروع من وجهة النظر هذه."
وقد حاولت كامارا إقامة رابط من خلال تصميم الحدائق ، وبالتالي فإن المسارات تؤدي من واحد إلى الآخر بشكل طبيعي إلى حد ما"
"تواجه الواجهات بعضها البعض أيضًا. يمكنك أن تكون في المكتبة وبعد ذلك عندما يحين وقت الصلاة ، يمكنك المشي على هذا الطريق المريح الذي يأخذك مباشرةً إلى المسجد".
سيتعين على الأشخاص الذين يستخدمون المكتبة بطبيعة الحال زيارة المسجد خلال إحدى الصلوات الخمس اليومية ، مما يضمن دائمًا وجود حركة طبيعية للأشخاص بين الاثنين.
تم بناء المسجد الجديد باستخدام طوب الأرض المضغوط (CEB) المصنوع من تربة لاحقة موجودة في الموقع ؛ مادة جديدة في المنطقة مع ميزة كونها صيانة أقل من أدوبي، مع فوائد حرارية مماثلة. يتم الحصول على معظم مواد المشروع من أقل من نصف قطر مسافة 5 كم إلى الموقع،
في حين أن استخدام الخرسانة يقتصر على العناصر الهيكلية مثل الأعمدة والأعتاب. الكتلة الحرارية لل CEBs والتهوية الطبيعية تبقي درجات الحرارة في الأماكن المغلقة مريحة ويزيل الحاجة إلى التبريد الميكانيكي. يتم تضخيم التأثير من خلال زراعة واسعة النطاق في جميع أنحاء الموقع،
وذلك باستخدام نظام الري بالتنقيط للمساعدة في نمو الغطاء النباتي. يقلل النظام من استهلاك المياه بشكل كبير وسيستخدم خزانًا للمياه تحت الأرض يلتقط هطول الأمطار الغزيرة.
لا يتم استخدام أي زجاج في أي مكان في المبنيين الجديدين ، حيث لا يمكن بسهولة الحصول على ألواح بديلة ، وتم اختيار جميع تركيبات الإضاءة من الأسواق المحلية لضمان إمكانية استبدالها محليًا ورخيصة.
"نريد أن نتعرف على ما يريده الناس والذي لم نكن نتوقعه أو نفكر في أشياء لم يكن لديك مركز ثقافي متوسط لديك. في العمل الذي أحاول القيام به ، فإن أهم شيء هو التحدث إلى الناس الذين يستخدمون هذه المساحات "، قال كمارا.
مزيد من الصور

جاري تحميل الاقتراحات...